
Aesthetically designed Boutique bungalows with 25+ new age amenities will turn your dream home into a wonderful reality.
Beautiful green landscapes, fresh air, healthy environment connecting to nature, personal garden area for small gatherings, kids play area, indoor game zones, luxurious swimming pool, gym, spa, 24/7 security and many other facilities to enhance the premium Bungalow living experience. Enjoy freshness & get access to nature inside a gated community that is far away from the rush of the city. (Launched as on 10th January 2023)
The real estate conglomerates – Keventer's 36-year legacy and Shrachi's 25 years of rich experience have been splurging its magic to your dream homes ever since.
After the grand success of projects like South City and Urbana, Shrachi has joined hands with Keventer yet again for Newtown Villas. Newtown Villas is in the heart of Newtown – the latest creation of these real estate establishments.

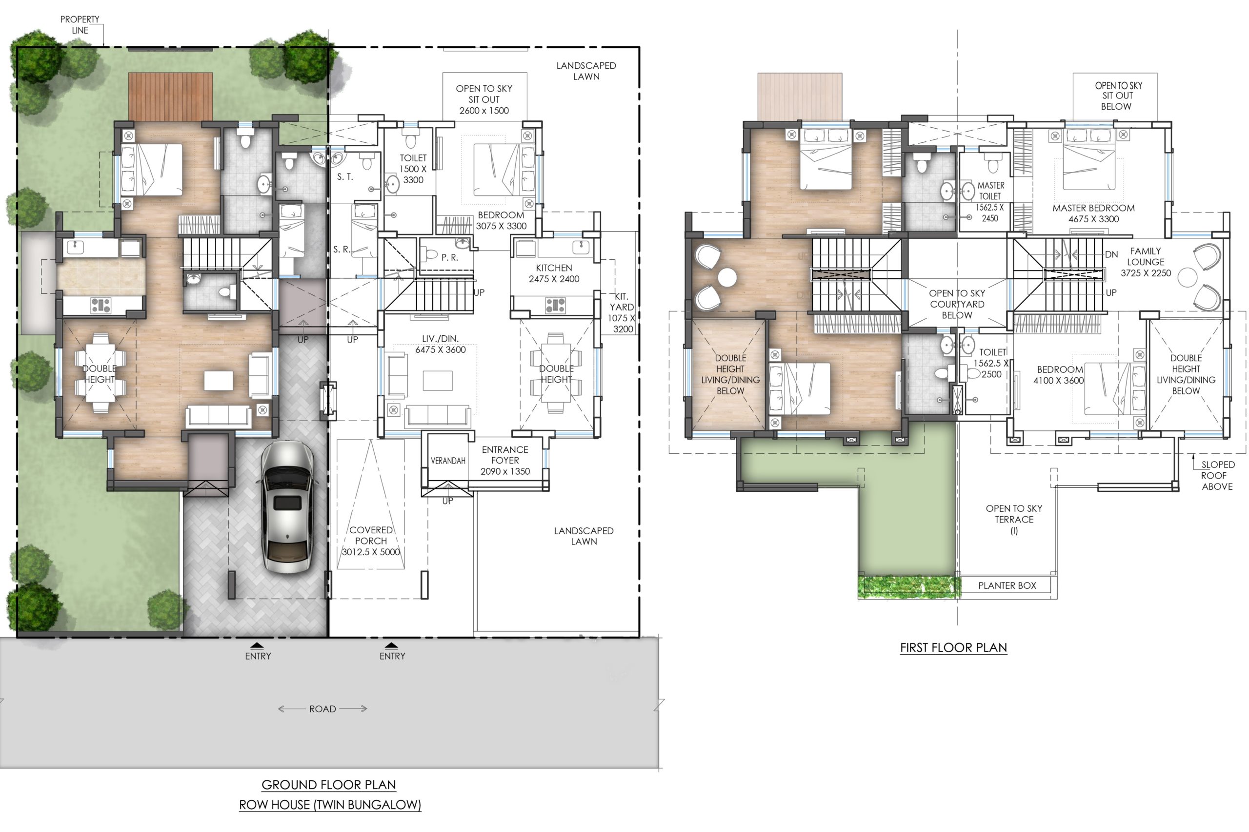
Ground Floor Plan

1512

Ground Floor Plan

1872

Ground Floor Plan

2.5 Khata